Direccion

Esquiú 8 e

Direccion

Av. Costanera y J. C. Chiozza - San Bernardo

Telefono

(02257) 46-8032

Whatsapp

2257533997

Volver

Volver al listado

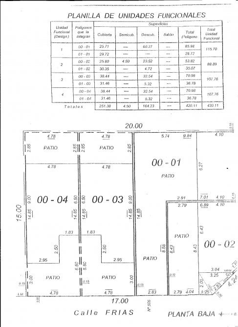
LOTE CON PLANOS APROBADOS

direccion Frias Y Mitre, San Bernardo

Alquiler

$ 600.000

Venta

USD 40.000

Características
tipo Lotes / terrenos
superficie Sup. total 143m2
codigo Código 767
Acerca de la propiedad

LOTE UBICADO SOBRE CALLE FRIAS - 9,56 MTR DE FRENTE CALLE FRIAS ( SUR) - 15 MTR DE FONDO ( OESTE) LOTE SUBDIVIDIDO CON PLANOS APROBADOS PARA PH  FRENTE 4.78MTRS FRENTE X 15 DE FONDO - SE VENDE EN CONJUNTO O POR SEPARADO 

Ubicación
Consultar por propiedad
Lote Con Planos Aprobados
Alquiler
$ 600.000
Venta
USD 40.000

Comunicate con nosotros

error

error

error

error


Propiedades relacionadas
Chatea con nosotros situacion
contacto No dudes en contactarte con nosotros contacto
Whatsapp WHATSAPP telefono LLAMAR
Comunicate con nosotros

error

error

error

error